盘龙区住房和城乡建设局12月27日发布《省道S101盘龙区段(沣源路—-黑龙潭)提升改造工程公告》,计划投资6.5亿元对省道S101盘龙区段(沣源路—黑龙潭)进行提升改造。
项目实施地点位于盘龙区茨坝街道。工程范围有三段,分别是沣源路—国博南路、农大节点工程、国博南路—黑龙潭,全长约2412.743米。主要建设内容为道路工程、排水工程、交通工程、照明工程、电力通道工程等。
工程计划2022年1月24日开工,2022年12月31日竣工。其中,省道S101盘龙区段农大节点工程需于2022年2月28日前完工;省道S101盘龙区段提升改造工程(国博南路-黑龙潭)需于2022年3月30日前完工;其余工程竣工时间为2022年12月31日。

《招标公告》中的施工图显示,本次国博东路道路建设工程共包括四部分:
1、规划国博东路起于沣源路,止于北京路,全长约4700米,规划红线宽度40米,为城市次干路。受片区开发及周边建设条件的限制,本次实施国博东路的范围为沣源路至国博南路段。
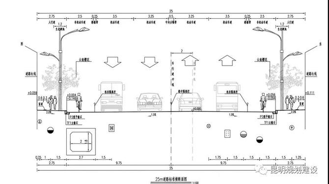
国博东路一期实施范围为沣源路至国博南路,道路长度860米,其中沣源路至宝云路道路长度为380米,建设宽度为28米;宝云路至国博南路道路长度为480米,建设宽度为23米至25米。为城市次干路,设计速度40km/h。
2、7204公路提升整治范围为国博南路至黑龙潭公园,道路长度为 946.86米,车行道宽度为8米至9米,人行道宽度2-3.5 米,定位为城市支路,设计速度20km/h。
3、龙泉公路道路提升整治范围为 7204公路至X003道路,道路长度194.622米,车行道宽度为8米,人行道宽两米,定位为城市支路,设计速度20km/h。
4、农大内部道路,共包括5条道路。N1号路,长度164.902米,宽度为15米;N2号路长度93.737米,宽度为5米至8米;N3 号路长度24.884米,宽度为5米;N4号路长度203.979米,宽度为5米;N5号路长度118.381米,道路宽度11米。道路均定位为辅助道路;设计速度15km/h。

国博大道(沣源路—国博南路)、农大内部道路为新建项目,7204 公路(沣源路—黑龙潭)、龙泉公路为提升整治项目。新建国博大道主要沿现状 7204 公路进行布设,道路均位于盘龙区茨坝街道。南侧紧邻沣源路,道路沿线主要有仟和酒店、落索坡村、农业大学、山水云天小区、黑龙潭公园、昆明植物园等单位。


本次道路的建设,有助于优化提升茨坝片区市政道路基础设施,改善国家植物博物馆周边道路通行条件,加快片区发展。